Premium villas with a tropical twist


Designed as a collection of private homes rather than a resort, the residence offers a sense of space and tranquility, where modern tropical architecture sits naturally within the jungle setting—creating an environment that feels both refined and deeply connected to its surroundings.
Villas
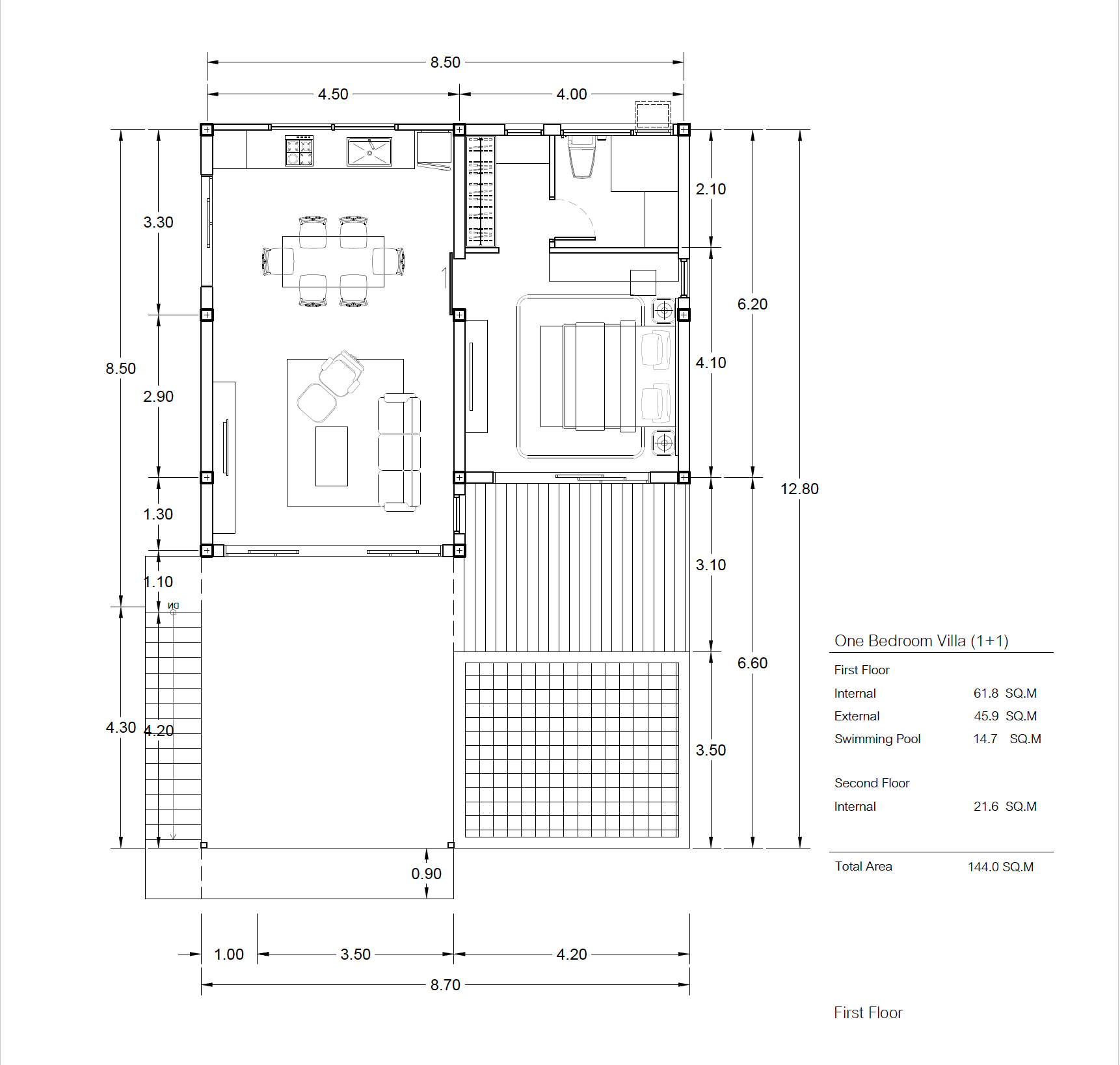
1+1 Bedroom
Tucked into the lush jungle of Lipa Noi, this 1+1 bedroom villa offers a calm retreat surrounded by nature. Spread across 145 sqm, the villa combines clean modern architecture with tropical elements, large glass openings, and seamless indoor–outdoor living.
The elevated design creates privacy and a strong connection to the greenery, while the open living spaces, private pool, and generous terraces make it ideal for both relaxed living and rental use. A perfect balance of tranquility, comfort, and understated luxury—set in one of Koh Samui’s most peaceful areas.
2 Bedroom
Set within the tropical jungle of Lipa Noi, this spacious 2-bedroom villa offers refined island living with a strong sense of privacy and calm. With a total built area of 184 sqm, the layout is designed for comfort, flow, and seamless indoor–outdoor living.
Wide terraces, a private pool, and full-height glass doors open the living spaces toward the surrounding greenery, while the two well-separated bedrooms provide privacy for families or guests. Clean architectural lines blend with natural materials, creating a relaxed yet elegant atmosphere—ideal as a private residence or a high-quality rental property in one of Koh Samui’s most peaceful locations.
Lifestyle

Inspired interiors
Luxury finishes


Tropical Lifestyle
Lipa Noi is known for its quiet beaches, natural surroundings, and laid-back atmosphere, making it ideal for those seeking a slower pace of life. The villas are just a short drive from the beach, local restaurants, cafés, and essential amenities—allowing you to enjoy the best of Samui in comfort and serenity.
Enquire now
Get in touch with us to learn more about the villas, availability, and how this residence could become part of your island life


